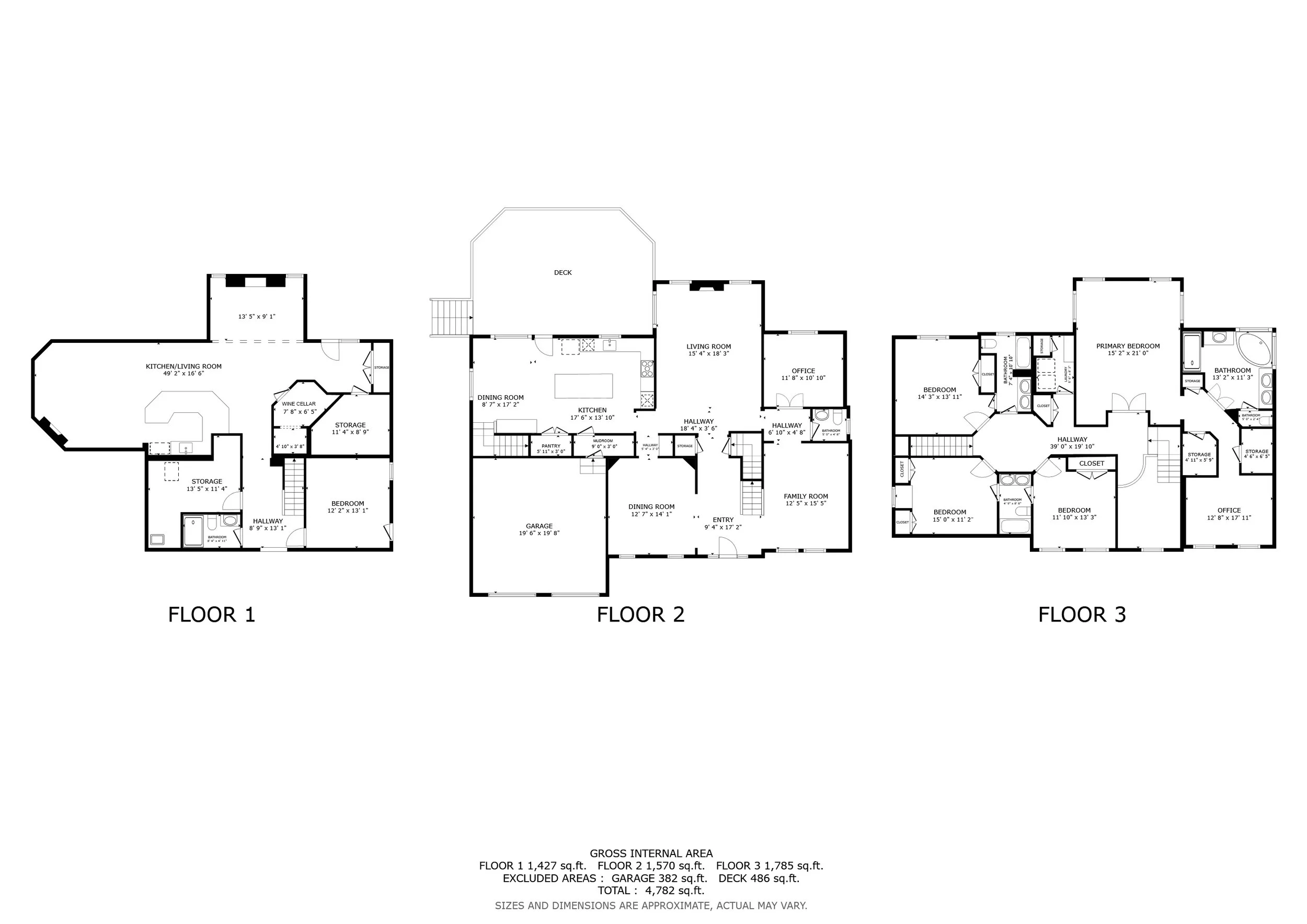
0
7125 Millbury Ct, Elkridge, MD 21075 - The Spence Group of the KW Collective